Home

Загальна площа будинку 360 м2
photo_2023-10-03 10.21.22

В затишному передмісті Києва поряд з лісом заховався справжній сімейний будинок. Всього в 20-ти хвилинах від центру столиці, з повністю облаштованою інфраструктурою: супермаркетами, продовольчими ринками, ресторанами, приватними та державними лікарнями, школами, дитячими садками, місцями відпочинку, салонами краси та фітнес-центрами, лікувальними центрами та спортивними клубами.

Класичні підходи в архітектурі та сучасні тенденції дизайну створюють затишне та продумане до дрібниць житло для великої родини.

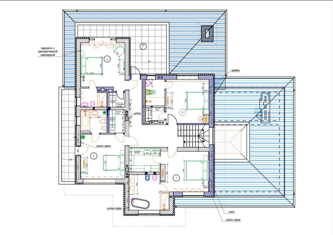
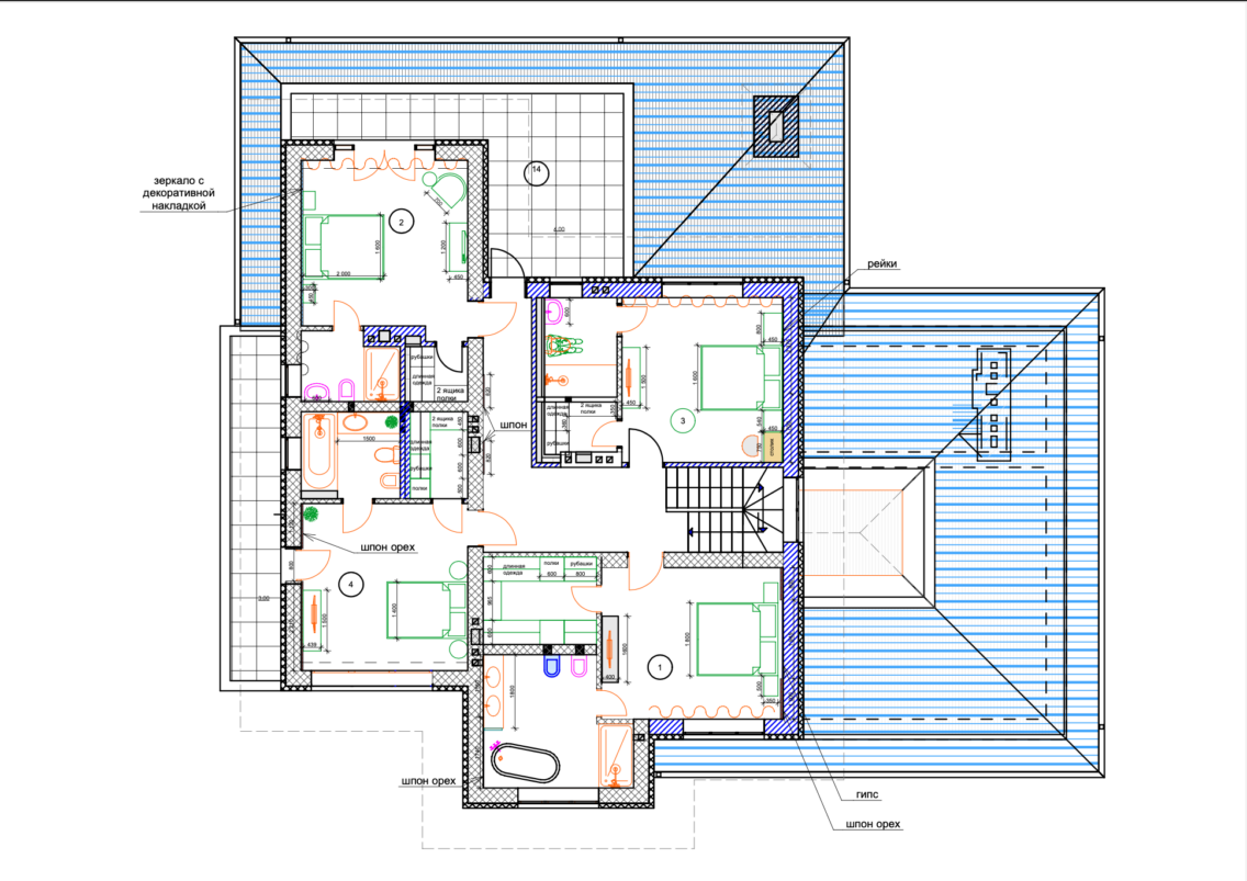
На комфортній площі двоповерхового будинку ергономічно розміщені всі необхідні для сучасної родини приміщення.

Починаючі від гаража на два автомобілі, штатно облаштованими технічними приміщеннями, закінчуючи гостьовими зонами та зонами відпочинку.

photo_2023-10-03 10.21.11
photo_2023-10-03 10.20.43
photo_2023-10-03 10.20.35
photo_2023-10-03 10.23.55
photo_2023-10-03 10.22.43
photo_2023-10-03 10.21.26
photo_2023-10-03 10.22.15
photo_2023-10-03 10.24.32
photo_2023-10-03 10.21.05
photo_2023-10-03 10.24.28
Поверховість

2

Кількість спалень

4

Висота поверхів

3.3м

Оздоблення будинку

• керамічна черепиця
• декоративні фасади - клінкерна цегла + мокрий фасад

Каналізація

септик

Матеріали стін

• керамічний блок Parotherm • теплоізоляція з використанням мінеральної вати 100мм

Зворотній
зв'язок